中古戸建
【金沢市旭町】
6LDK+駐車3台可。
リフォーム歴あり☆
ガレージやお庭も♪
金沢市旭町1丁目534番(23番10号)
価格 2,200万円(税込)
内覧ご予約受付中!


- HOME
- おすすめ分譲地・建売物件
- 【金沢市旭町】築36年|金沢市立杜の里小学校(徒歩19分)リフォーム歴あり☆

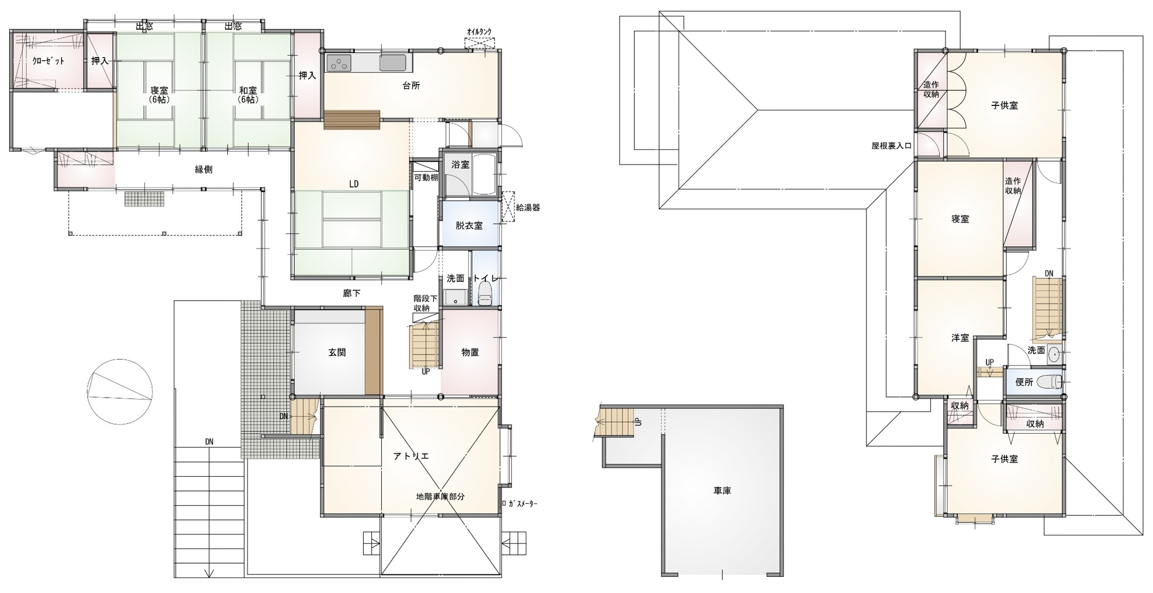
1階は駐車スペース、2階、3階が居住部分となっており開放感があるお家です。
2階:部屋数も収納も多く、和室やアトリエはライフスタイルに合わせた使い方ができます。ガレージからの出入りも可能◎
3階:居室が4部屋。ご家族が多くてもそれぞれがプライベート空間を確保できます。
大きな造作収納や屋根裏なども見所です。
- albis田上店(徒歩8分)
- イオンもりの里店(徒歩13分)
- ファミリーマート金沢田上店(徒歩9分)
- クスリのアオキ田上店(徒歩9分)
- DCM金沢田上店(徒歩6分)
- ニトリ金沢田上店(徒歩8分)
- 金沢市立杜の里小学校(徒歩19分)
- 金沢市立兼六中学校(徒歩20分)

この物件のお支払い例
価格 2,200万円(税込)
月々 49,123万円(税込)頭金 0円 / ボーナス払い 0円
※上記のお支払い例は 金利0.35%、借入期間40年、北國銀行借入、諸費用別途 と仮定した場合のシミュレーションです
この物件のお支払い例
価格 2,200万円(税込)
月々 49,123万円(税込) 頭金 0円 / ボーナス払い 0円
※上記のお支払い例は 金利0.35%、借入期間40年、北國銀行借入、諸費用別途 と仮定した場合のシミュレーションです
| 物件名 | 旭町1丁目 中古 |
|---|---|
| 物件種別 | 中古戸建て |
| 価格 | 2,200万円 |
| 所在地 | 金沢市旭町1丁目534番(23番10号) |
| 学校区 | 杜の里小学校・兼六中学校 |
| 土地面積 | 330.72㎡(100.04坪) |
|---|---|
| 私道負担 | − |
| 道路方向 | 北東:4.7m 間口:約17.8m |
| 地目 | 宅地 |
| 土地権利 | 所有権 |
| 都市計画 | 市街化区域 |
| 用途地域 | 第1種中高層住居専用地域 |
| 建ぺい率・容積率 | 60%/200% |
| その他制限 | - |
| 建物面積 | 214.93m²(65.01坪) |
|---|---|
| 建物構造 | 木造 |
| 階数 | 3階 |
| 間取り | 6LDK |
| 築年月日 | 1989年3月 |
| 備考 | リフォーム歴:外部(2007年)浴室・トイレ・洗面所・レンジフード(2018年)屋根(2024年)
お庭スペース、ガレージ、カーポートあり |
|---|
| 取引態様 | 専任 |
|---|---|
| 現況 | 空家 |
| 引渡時期 | 相談 |
| 取扱会社 | ユアフィットアイ株式会社 〒920-8203 石川県金沢市鞍月3丁目83番地 TEL: 076-255-1424 宅地建物取引業 石川県知事(2)第4305号 |
|---|
















【旭町1丁目】
開放感のある6LDK+駐車3台可能。
リフォームや増築をしながら大事に住まわれたお家です。
収納豊富でお庭やアトリエ、ガレージなど見所がたくさん♪
ご家族が多い方や多趣味の方にもオススメ!
山側環状道路に近く、商業施設や飲食店も多数☆
ぜひ一度ご覧ください。