新築戸建NEW
3SLDK&家事ラク動線
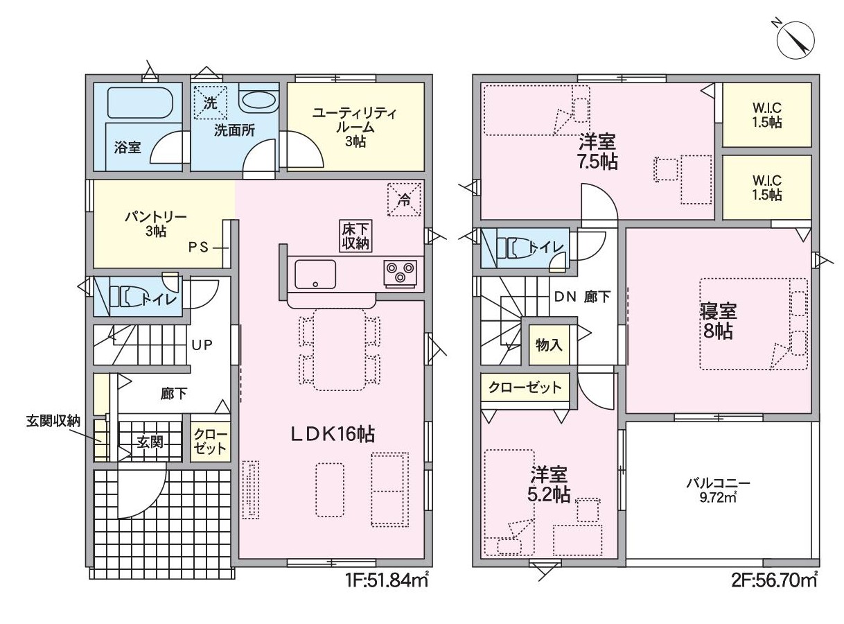
パントリーで収納量◎
【白山市松本】
白山市松本町1007-4
価格 2,480万円(税込)
内覧ご予約受付中


- HOME
- おすすめ分譲地・建売物件
- 3SLDK&家事ラク動線。パントリーで収納量◎【白山市松本】

前面道路6.5m。駐車は2~3台停められます。

広々ユーティリティとパントリーが嬉しいポイントです。
2階バルコニーもゆったりした広さで、お天気のいい日の洗濯物干しにぴったり!
-
Aコープ加賀野店(徒歩28分)
-
ファミリーマート白山美川インター店(徒歩22分)
-
松陽小学校(徒歩25分)
-
笠間中学校(徒歩28分)
- Aコープ加賀野店(徒歩28分)
- ファミリーマート白山美川インター店(徒歩22分)
- 松陽小学校(徒歩25分)
- 笠間中学校(徒歩28分)

この物件のお支払い例
価格 2,480万円(税込)
月々 55,375万円(税込)頭金 0円 / ボーナス払い 0円
※上記のお支払い例は 金利0.35%、借入期間40年、北國銀行借入、諸費用別途 と仮定した場合のシミュレーションです
この物件のお支払い例
価格 2,480万円(税込)
月々 55,375万円(税込) 頭金 0円 / ボーナス払い 0円
※上記のお支払い例は 金利0.35%、借入期間40年、北國銀行借入、諸費用別途 と仮定した場合のシミュレーションです
| 物件名 | 白山市松本 新築 |
|---|---|
| 価格 | 2,480万円 |
| 所在地 | 白山市松本町1007-4 |
| 学校区 | 松陽小学校・笠間中学校 |
| 土地面積 | 170.47㎡(51.55坪) |
|---|---|
| 道路方向 | 南西:10.4m 間口:9.6m |
| 地目 | 宅地 |
| 土地権利 | 所有権 |
| 都市計画 | 市街化区域 |
| 用途地域 | 準工業地域 |
| 建ぺい率・容積率 | 60%/200% |
| その他制限 | - |
| 建物面積 | 108.54㎡(32.83坪) |
|---|---|
| 建物構造 | 木造 |
| 階数 | 2階 |
| 駐車場台数 | 2~3台 |
| 向き | 南 |
| 間取り | 3SLDK |
| 築年月日 | 2026年2月 |
| 備考 | 施工会社:株式会社アーネストワン |
|---|
| 取引態様 | 仲介 |
|---|---|
| 現況 | 建築中 |
| 引渡時期 | 相談 |
| 取扱会社 | ユアフィットアイ株式会社 〒920-8203 石川県金沢市鞍月3丁目83番地 TEL: 076-255-1424 宅地建物取引業 石川県知事(2)第4305号 |
|---|













【白山市松本】
株式会社アーネストワンの「クレイドルガーデン」のお家。
住宅性能表示で7項目中5項目で最高等級を取得!
価格と性能を両立した建売住宅です。
耐震等級3取得、制振装置SAFE365搭載の地震に強い住まい。
金沢美川小松線にすぐに出られます♪
ぜひ一度実際にご覧ください!