新築戸建
角地&駐車3台OK
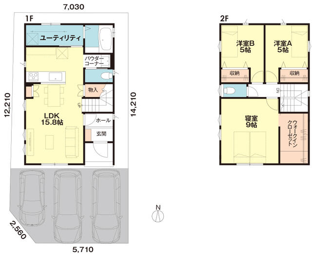
広々ユーティリティが
魅力の家事ラク動線
【金沢市米泉町】
(A棟)
金沢市米泉町7丁目73-11
価格 3,186万円(税込)
内覧ご予約受付中


- HOME
- おすすめ分譲地・建売物件
- 角地&駐車3台可能!広々ユーティリティが魅力の家事ラク動線【金沢市米泉町】

バスルームと併設の広々したユーティリティスペースが魅力。駐車最大3台可能です。
-
米泉小学校(徒歩13分)
-
清泉中学校(徒歩20分)
-
大阪屋ショップ西泉店(徒歩16分)
-
ローソン金沢米泉店(徒歩1分)
-
クスリのアオキ米泉店(徒歩4分)
-
マルエー押野店(徒歩16分)
-
有松病院(徒歩30分)
- 米泉小学校(徒歩13分)
- 清泉中学校(徒歩20分)
- 大阪屋ショップ西泉店(徒歩16分)
- ローソン金沢米泉店(徒歩1分)
- クスリのアオキ米泉店(徒歩4分)
- マルエー押野店(徒歩16分)
- 有松病院(徒歩30分)

この物件のお支払い例
価格 3,186万円(税込)
月々 71,139万円(税込)頭金 0円 / ボーナス払い 0円
※上記のお支払い例は 金利0.35%、借入期間40年、北國銀行借入、諸費用別途 と仮定した場合のシミュレーションです
この物件のお支払い例
価格 3,186万円(税込)
月々 71,139万円(税込) 頭金 0円 / ボーナス払い 0円
※上記のお支払い例は 金利0.35%、借入期間40年、北國銀行借入、諸費用別途 と仮定した場合のシミュレーションです
| 物件名 | 米泉7丁目 新築 |
|---|---|
| 価格 | 3,225万円 |
| 所在地 | 金沢市米泉町7丁目73-11 |
| 学校区 | 米泉小学校・清泉中学校 |
| 土地面積 | 100.42㎡(30.37坪) |
|---|---|
| 道路方向 | 南:10.5m 間口:5.7m、西:5.3m 間口:14.7m |
| 地目 | 宅地 |
| 土地権利 | 所有権 |
| 都市計画 | 市街化区域 |
| 用途地域 | 準工業地域 |
| 建ぺい率・容積率 | 60%/200% |
| その他制限 | - |
| 建物面積 | 91.7㎡(27.73坪) |
|---|---|
| 建物構造 | 木造 |
| 階数 | 2階 |
| 駐車場台数 | 2~3台 |
| 向き | 西 |
| 間取り | 3LDK |
| 築年月日 | 2023年8月 |
| 備考 | 施工会社:フレンドリーハウス |
|---|
| 取引態様 | 仲介 |
|---|---|
| 現況 | 完成済 |
| 引渡時期 | 即時 |
| 取扱会社 | ユアフィットアイ株式会社 〒920-8203 石川県金沢市鞍月3丁目83番地 TEL: 076-255-1424 宅地建物取引業 石川県知事(2)第4305号 |
|---|














【金沢市米泉7丁目】
石友ホームグループ施工の建売住宅です。
制振ダンパー搭載、高気密&高断熱の機能性住宅。
居室照明、エアコン2台付きですぐに住みはじめられます。
角地で日当たりも良好♪
JR西金沢駅まで徒歩4分。
金沢・野々市方面へのアクセス良好、近隣に商業施設も多数あります。
ぜひ一度実際にご覧ください!